Navigation überspringen Sitemap anzeigen

Brandschutz - Kosten optimieren

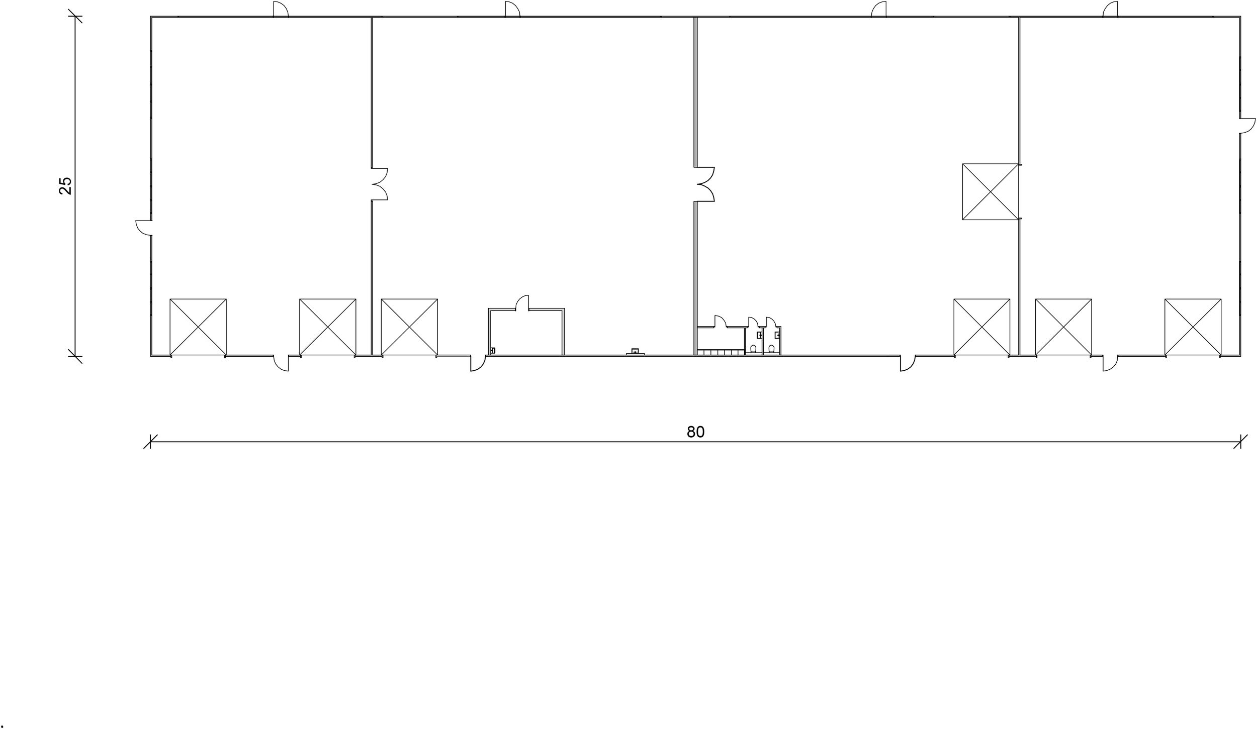
Der Bauherr plante eine Halle mit einer Fläche von 2.000 m² in Stahlskelettbauweise mit einer Umkleidung aus Sandwichelementen.

Rechtliche Grundlage:

Nach der anzuwendenden Industriebaurichtlinie müssen die tragenden und aussteifenden Bauteile (Stahlskelettkonstruktion) bei einer Größe von 2.000 m² mindestens feuerhemmend (F30) sein. Stahl erfüllt diese Anforderungen nicht.
Daher wurde in der Planung eine Beschichtung der Stahlbauteile erwogen, um die geforderte Feuerwiderstandsdauer zu erreichen.

Unsere Lösung:

Die geplante Wand in der Mitte der Halle wird als Brandwand ausgeführt. Diese war ohnehin als Mauerwerkswand geplant. Dadurch entstehen 2 Brandabschnitte mit jeweils 1.000 m². Eine Errichtung in Stahlskelettbauweise ohne Beschichtung ist gemäß Industriebaurichtlinie zulässig, da bis zu einer Brandabschnittsgröße von 1.800 m² eine Bauweise ohne Feuerwiderstandsdauer (F0) der tragenden und aussteifenden Bauteile erlaubt ist.

 

Ursprüngliche Planung

Unser Vorschlag

Beschichtungskosten Stahlbauteile

Ca. 100.000 €

Mehrkosten Wandertüchtigung

Ca. 15.000 €

 

 

Mehrkosten Brandschutztür

Ca. 3.500 €

Kostenersparnis:

 

Ca. 81.500 €

Muster vor Beratung

Muster nach Beratung

Hinweis:

Bei diesem Beispiel handelt es sich um ein anonymisiertes vereinfachtes Beispiel eines real entstandenen Gebäudes.

Weitere Vorteile:

In Gesprächen mit dem Bauherrn stellte sich heraus, dass mittelfristig eine Vermietung einer Hallenhälfte geplant ist. Hierzu wäre eine Unterteilung durch eine Trennwand in feuerhemmender Qualität notwendig. Durch die von uns vorgeschlagene Brandwand ist diese Anforderung bereits mehr als erfüllt.

Beschichtungen von Stahlbauteilen sind laufend auf ihre Funktionstüchtigkeit zu überprüfen, wodurch wiederkehrende Kosten entstehen. Zusätzlich liegt die Haltbarkeit einer Beschichtung bei ca. 10 Jahren, bevor diese erneuert/instandgesetzt werden muss.

Zum Seitenanfang